Youth Housing Project
Aligned Architecture partnered with DevNW to expand the Polk Street Apartments in Eugene’s Whiteaker neighborhood, creating safe and supportive housing for young adults at risk of homelessness, including those aging out of foster care. Stable housing is critical for these youth as they navigate the transition to independent adulthood, and this project provides both a home and access to vital community resources.
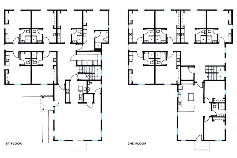
The 6,000-SF infill development adds 12 Single Room Occupancy (SRO) units, a site manager’s apartment, and shared spaces including a community kitchen and dining room, meeting room, laundry, and a flexible gathering space for classes and events. The new L-shaped, two-story building works in harmony with the existing apartments to frame a courtyard featuring an arbor, pavilion, garden beds, recreation lawn, rain garden, and secure bike parking.
Through thoughtful design and careful integration of indoor and outdoor spaces, the project not only increases affordable housing but also fosters stability, connection, and dignity for its residents.
The 6,000-SF infill development adds 12 Single Room Occupancy (SRO) units, a site manager’s apartment, and shared spaces including a community kitchen and dining room, meeting room, laundry, and a flexible gathering space for classes and events. The new L-shaped, two-story building works in harmony with the existing apartments to frame a courtyard featuring an arbor, pavilion, garden beds, recreation lawn, rain garden, and secure bike parking.
Through thoughtful design and careful integration of indoor and outdoor spaces, the project not only increases affordable housing but also fosters stability, connection, and dignity for its residents.
