Woodland Opportunity Village
Aligned Architecture continually seeks out opportunities to design affordable housing. Woodland Opportunity Village, a garden court at 334 Freeman Street in Woodland, California, is a great example.
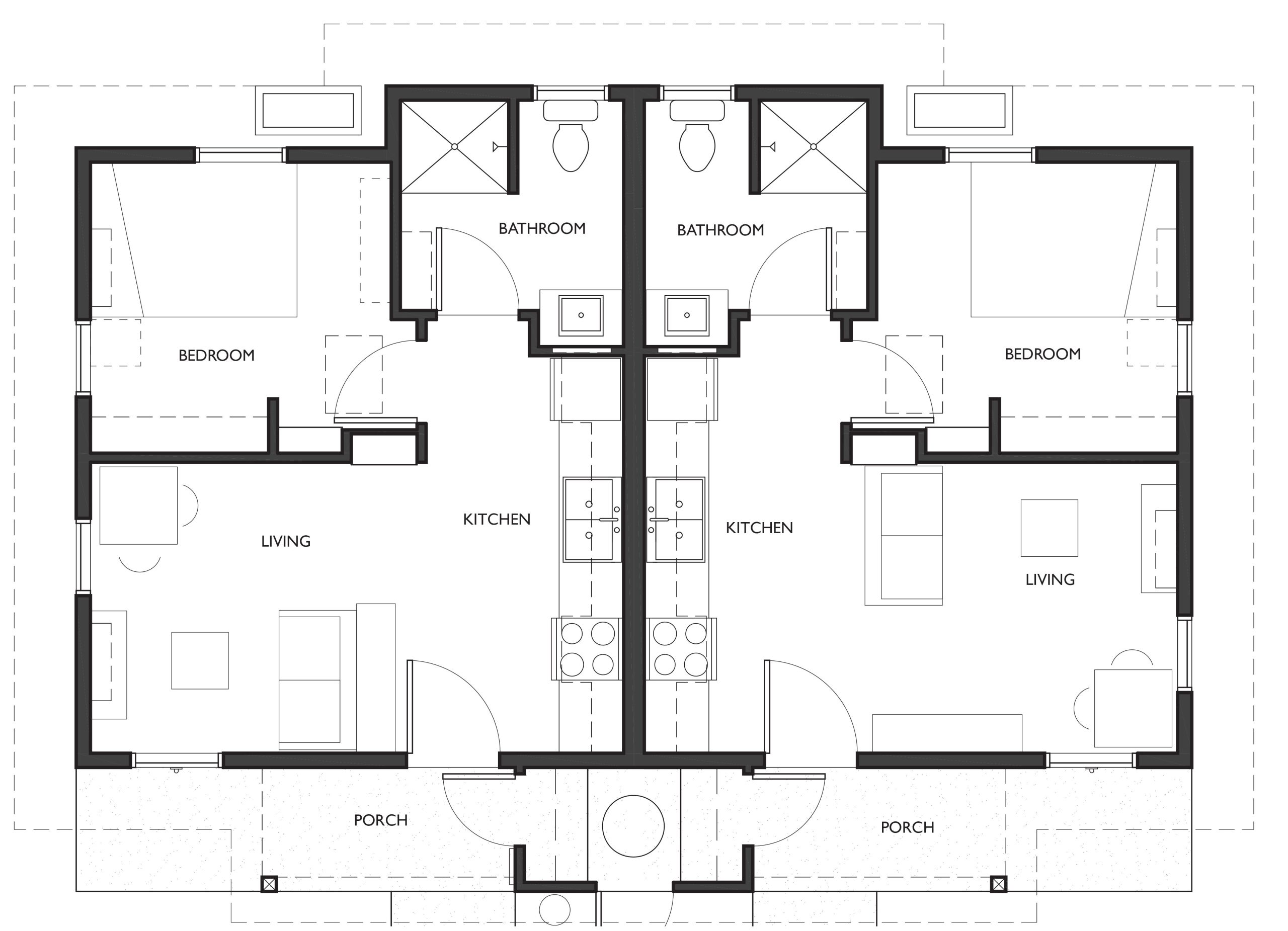
The design includes 12 duplexed tiny homes with a Common Building. These are permanent homes on slab foundations, complete with one bedroom, a living area, a kitchen, a 3-piece bathroom, and storage, all in 380 square feet. These homes meet the California building code and will be powered with electric and solar energy.
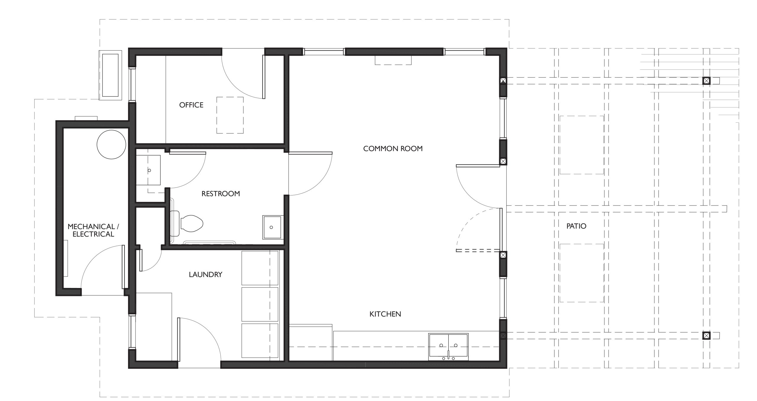
There is a community building with laundry facilities, an office, a gathering room with catering kitchen, an ADA bathroom, and a patio with a shade cover. This common space is designed for community gatherings, meetings, and birthday celebrations. There is a parking lot and street parking, shade trees, wheelchair width cement walkways, drought tolerant landscaping with drip irrigation, a pet relief area, and a grass gathering area. There are raised beds for gardening. The community will be fenced. The site and the Community Building are fully accessible. Ten units are standard design with accessibility in mind. Two units are fully mobility accessible, and one of those units is also communications accessible. There will be a 20-hour per week on-site manager.
Renderings by Mike Hopper
The design includes 12 duplexed tiny homes with a Common Building. These are permanent homes on slab foundations, complete with one bedroom, a living area, a kitchen, a 3-piece bathroom, and storage, all in 380 square feet. These homes meet the California building code and will be powered with electric and solar energy.
There is a community building with laundry facilities, an office, a gathering room with catering kitchen, an ADA bathroom, and a patio with a shade cover. This common space is designed for community gatherings, meetings, and birthday celebrations. There is a parking lot and street parking, shade trees, wheelchair width cement walkways, drought tolerant landscaping with drip irrigation, a pet relief area, and a grass gathering area. There are raised beds for gardening. The community will be fenced. The site and the Community Building are fully accessible. Ten units are standard design with accessibility in mind. Two units are fully mobility accessible, and one of those units is also communications accessible. There will be a 20-hour per week on-site manager.
Renderings by Mike Hopper