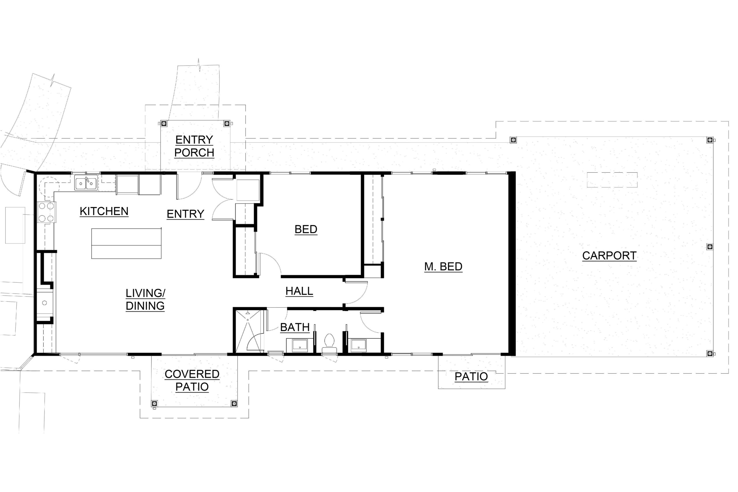
River’s Edge Residence
This design features a main residence, guesthouse, and and carport. Expansive windows and porches open up to the scenic Mckenzie River. Timber trusses at the entry, walkways, and carports unify the design and call back to traditional timber building traditions.












